intl.square
‹ BACK TO AVAILABILITIESFloor 10 25,794 SF

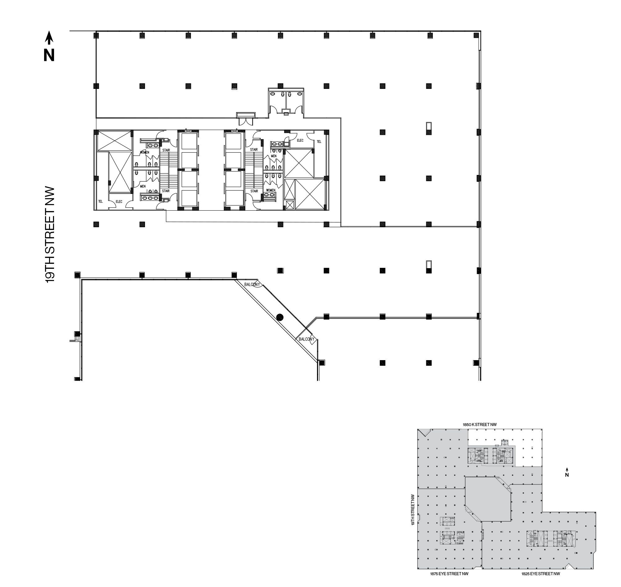
1850 K Street Tower

Floor 10
Suite 1000

25,794 SF
Available Now

Contact

Now leasing. Contact us for further
information on office space availability,
renovations, updates and more.

Download Brochure
 

© 2022 International Square. All Rights Reserved
Privacy Policy |Terms of Use |Cookies Settings