intl.square
‹ BACK TO AVAILABILITIESFloor 10 23,261 SF

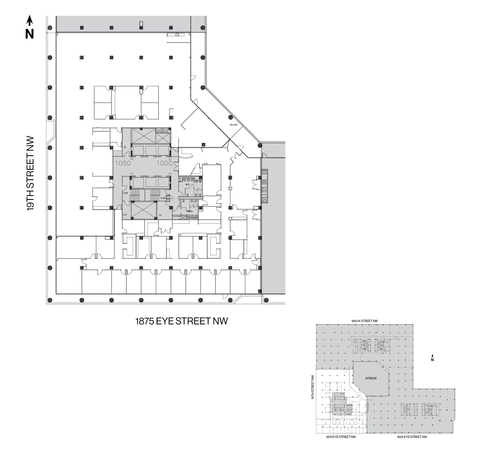
1875 Eye Street Tower

Floor 10
Suite 1050

23,261 SF
Available Now

Contact

Now leasing. Contact us for further
information on office space availability,
renovations, updates and more.

Download Brochure
 

© 2022 International Square. All Rights Reserved
Privacy Policy |Terms of Use |Cookies Settings